发布时间:2025-11-06浏览量:3949
玫瑰花园之家并非一次常规的住宅改造,而是设计师以 “探索” 为核心,在 1900 年代安妮女王别墅的肌理之上,用曲线与光影叙事,完成的一场 “旧时光与当代性” 的对话。从原始墙壁的材质发现,形态的空间转译,每个设计决策都紧扣 “意外与必然” 的共生,最终让百年别墅焕发出既保留历史温度、又充满当代雕塑感的独特气质。



公共空间:开放与联结的艺术
步入公共区域,自然材质的肌理碰撞是视觉核心:清水混凝土墙面保留着粗粝的时光质感,似将户外大地气息拽入室内;浅木色柜体与家具则以温润纹理,中和了混凝土的冷硬,一刚一柔间,平衡出舒适的视觉温度。




客厅:光影与自然的 “沉浸式剧场”
客厅宛如 “自然沉浸式剧场”。超大落地窗消解了空间边界,户外绿树、天光毫无保留地涌入视野,让室内外成为彼此的延伸。

悬浮式黑色壁炉如艺术装置点睛,火光跃动时,与窗外树影婆娑相映,为空间注入温暖烟火气。


沙发选用深灰皮革与米色布艺的组合,搭配木质框架的茶几、单椅,在色彩与材质的碰撞中,既显现代设计的利落,又藏着侘寂美学的松弛感。
餐厨区:功能与美学的 “共生场”
餐厨区以开放式布局,实现 “烹饪 — 交流 — 用餐” 的流畅互动。厨房内,灰色大理石中岛台纹理如山水墨画,既是备餐操作台,也是家人围坐分享的吧台;




上方双筒形黑色烟机如工业风雕塑,与白色小方砖墙面形成视觉反差,简约却不单调。



餐厅的木质长桌与黄色软包餐椅呼应整体调性,一侧定制木柜兼具收纳与展示功能,弧形边缘柔化了空间棱角,让动线更显流畅。
私密空间:疗愈身心的 “静谧角落”
浴室的设计,是一场 “身心疗愈的仪式”。浅米色瓷砖铺满墙面,在自然光与灯光映衬下,散发出柔和哑光质感;

独立浴缸旁,黄铜色五金件如艺术品般精致,与木质置物架、白色瓷砖共同营造出雅致氛围。百叶窗过滤后的光线温柔洒落,让沐浴时光成为与自我对话的静谧时刻。
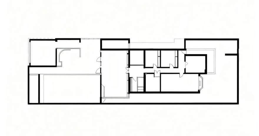
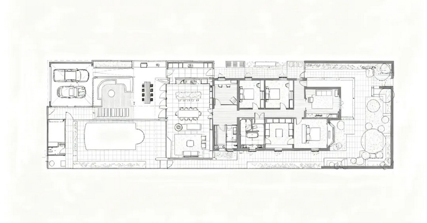
布局与自然:空间的 “呼吸感”
从平面图可见,空间布局以 “开放核心,私密围合” 为逻辑:公共区域(客厅、餐厨区)形成互动核心,私密的卧室、浴室则围绕其有序分布。

大量玻璃界面与户外庭院、景观相连,让自然光线自由穿梭,空气仿佛有了 “呼吸感”。无论是从客厅望向庭院葱郁,还是从餐厨区瞥见窗外蓝天,“自然” 始终是空间里最生动的 “装饰”。
空间以 “减法” 思维设计,让材质、光影与自然本身成为主角。它不仅是物理居住空间,更是能让人慢下来、感受生活本真美好的精神居所 —— 在自然肌理的包裹中,现代生活的诗意悄然绽放。